サイト内検索

Search

言語選択

Search

日本語 ENGLISH

女子学生寮『葵レジデンス』

「レジデンシャル・エデュケーション」=日常生活が学びの場

コンセプト

  1. 寮生活を通じた学び
    全てのフロアに、寮生が集う「共用スペース」を広く設けています。
    一緒に料理をしたり、勉強をしたり、寮生活のあらゆる場面を学びの場として捉えています。
  2. 全寮個室
    共同生活をしながら、充実したプライベート空間を確保しています。
  3. 寮生イベント
    入寮式、ウェルカムパーティー、季節のイベントなど、年に数回の寮生イベントを予定しています。
    「RA(レジデント・アシスタント)プログラム」を導入し、学生寮を「生活の場」としてではなく、全寮生にとっての「多様な経験の場」と位置づけています。トライ&エラーを繰り返し、少しずつ成功体験を積み上げる中で、自己肯定感を醸成し、他者を思いやることができる人材に成長していくことを目標にします。
  4. 24時間対応のセキュリティ
    毎日入退館ログを取り、一定期間入退館が確認できない場合はお声がけをします。
    緊急時には管理人やスタッフが駆けつけます。
    寮周辺には防犯カメラを設置しています。
  5. キャンパスまで徒歩10秒。一番学びやすい立地です
    正門前の立地をいかして、父母の会の支援のもと生協が提供する100円朝食を食べたり、授業の合間に一休みしたり、夜まで図書館で勉強をしたり。移動時間を気にせず、生活空間とキャンパスを往来できます。


2026年4月OPEN!葵レジデンスをご紹介します

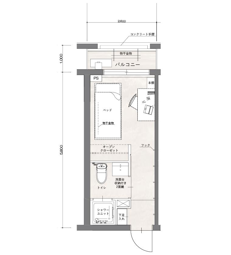
間取り・室内設備等 (3月19日更新)

個室 広さ
15㎡
室内設備
エアコン、給湯設備、管理人室通報機、シャワー室、トイレ、
ベッドフレーム、机・椅子、書棚、クローゼット、カーテン
※寝具(マットレス含む)・食器・物干し竿等は、各自で用意してください。
※ミニ冷蔵庫も持込可能です。
※居室にテレビ線はありません。
館内施設
鉄筋コンクリート造3階立て 学生個室38室
ロビー、シェアキッチン(各階)、シアタールーム、ラウンジ、
畳スペース、洗濯機・乾燥機(各階)、管理人室、自転車置場
シェアキッチン設備(各階)
トースター・電子レンジ・炊飯器・冷蔵庫・フライパン
セキュリティ
防犯カメラ7台設置、居室内からの通報システム、オートロック、
管理人在中

1Fシェアキッチン

3Fキッチン

内廊下

寮室

寮室

ランドリー

ランドリー

シアタールーム

入寮資格

入寮時に本学に在学する者、または入学予定の者(学部生のみ)。
※休学・退学者は入寮・在寮資格なし。


求める寮生像

  1. 学びの場としての寮であることを理解し、イベントや交流活動に主体的に参加する意欲を持つ者
  2. 他者・多様性を尊重し、共同生活を営むことができる者


入寮日

2026年3月28日(土)~29日(日)(予定)


入寮式

2026年3月29日(日) 国分寺キャンパスにて(予定)


入寮申込について

新入生(2026年4月第1年次入学者)

入寮費 80,000円
寮費(月額) 68,000円
※家賃、共益費、光熱水、インターネット接続費用込
入寮期間 2028年2月末まで
募集人数 20名
入寮申込方法・選考結果 (第一次)入学手続期間内に、入学手続マイページから申込が可能です(先着順ではありません)。
申込者多数の場合は、入寮申込フォームの回答内容をもとに選考します。
入寮申込時期に応じて、選考結果をお知らせします。
詳細は、入学手続マイページ掲載の「入学手続ガイドブック」を確認してください。

新2~4年生(2025年度在学生)

入寮費 40,000円
寮費(月額) 68,000円
※家賃、共益費、光熱水、インターネット接続費用込
入寮期間 2027年2月末まで
募集人数 若干名
入寮申込方法 学生課窓口にお問い合わせください。

見学について

2026年3月末完成のため、2026年4月入寮希望者の入居前の見学はできません。


FAQ(3月19日更新)

東京都内在住ですが、コンセプトに共感して入寮を希望します。入寮できますか。

現住所の制限はありません。コンセプトに賛同していただける女子学生は、ぜひ入寮をお申し込みください。

家族や友人は面会できますか。

原則、寮内での面会はできません。ただし、女性の親族に限り、大学または管理人の事前許可を得て入室できます

家族や友人は宿泊できますか。

寮生以外の方の入館・宿泊はできません。

門限はありますか。

23:30(予定)です。

入寮日に母、姉妹が入館して荷ほどきをすることはできますか。

ご家族(女性のみ)であれば1名まで立ち合いが可能です。

寝具や家具を購入店から直送可能ですか。

直送いただくことは問題ありません。配送業者はヤマト運輸または日本郵便をご利用のうえ、配達時間は午前中指定でお願いします。

購入店で組立てを頼んでもいいですか。

原則として、寮生以外の方の入寮は認めていないため、組立ては寮生ご本人が行ってください。なお、荷ほどきについてはご家族(女性のみ)の立ち合いが可能です。

持ち込めるミニ冷蔵庫の寸法・容量に指定はありますか。

特に指定はありません。ただし居室内はスペースが限られているため、一定期間生活してからの購入をおすすめします。なお、各階のシェアキッチンに共用の冷蔵庫を用意しています。

長期授業休止期間中(夏休み・春休み等)も在室できますか。実家に帰省しなければならない等の決まりはありますか。

決まりはありません。年間を通して在室していただけます。
※設備点検のため、8月に半日程度、全館停電になる日があります。

入寮日にあると便利なものはありますか。(参考)

ハサミ、カッター、ウェットティッシュ、タオル、トイレットペーパー、シャンプー等
※徒歩5分程度の場所にコンビニエンスストアがあります。

寮内の履き物は決まりがありますか。

共用スペースは外履き、居室内は内履き(スリッパ等)に履き替えてください。

問合せ先

学生課学生寮係 042-328-7754